Jacques Yvonne Bertie Harry Peter Anja Marij Toin Yvette Eric Monique
Home
header-foto-lambertus-van-daal Mail
Mail adres webmaster
Geboren 13 januari 1947 te Gulpen.
Getrouwd 27 december 1970 voor de wet en 6 maart 1971 in de kerk te Waalwijk met Maria Bernadette Smits. Geboren 21 februari 1947 te Waalwijk
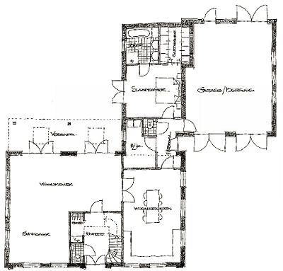
De tekeningen van het huis van Peter en Marijworden nu aangevuld met foto's. En we denken dan maar, beter laat dan nooit. Het huis is bijna klaar dus deze tekeningen kunnen nog wel.Peter en Marij zijn straks zo trots dat we ook wel wat interieurfoto's kunnen verwachten.

huis-1 (234K) huis-2 (234K)
huis-3 (234K) huis-4 (234K)

En de tekeningen waren:
huis2-peter (234K) huis3-peter (88K)
huis1-peter (170K)

Deze foto's maken het een en ander misschien duidelijker.
Ga met je muis over de foto en je ziet wel wie er trots is.
Baby Roos

2005
Zo begon Villers 2006

2006
Peter zijn activiteit:
EEN CABRIOTOUR

29-08-2007
Peter en de Mikkemannen

Valid XHTML 1.0 Transitional Valide CSS!