Jacques Yvonne Bertie Harry Peter Anja Marij Toin Yvette Eric Monique
Home









logo-FB
Nieuws
Jacques en Ineke gaan naar Vught
Mail
Mail adres Anja Wijnands
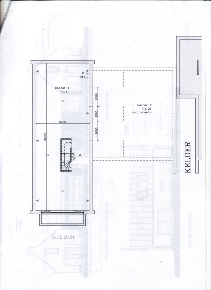
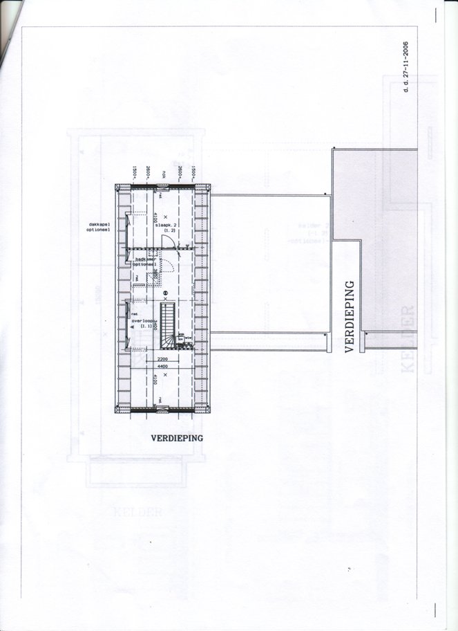
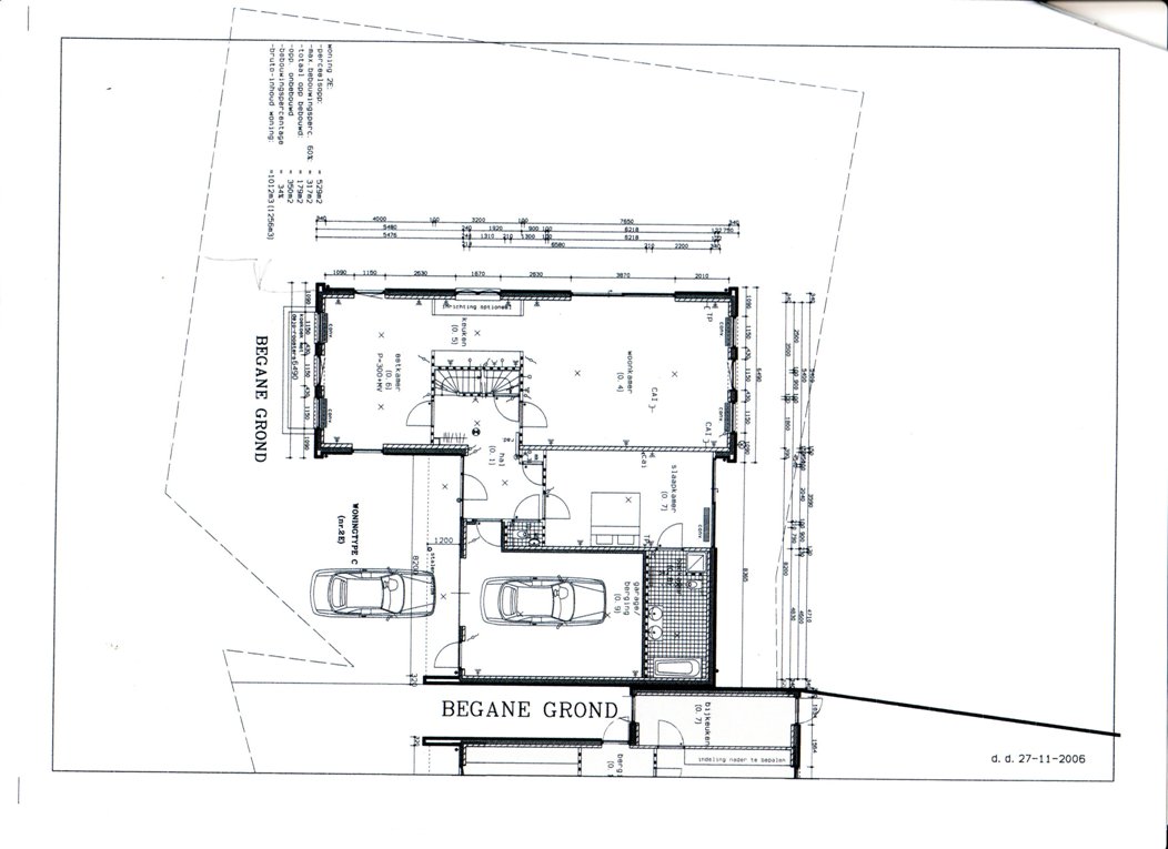
Het duurt nog wel eent tijdje maar hier zijn de eerste tekeningen.
Foto's zijn weer verdwenen maar worden weer geplaatst Als de tijd daar is komen er ook nog wel foto's

Jacques en Ine van Daal naar Vught Jacques en Ine van Daal naar Vught
Jacques en Ine van Daal naar Vught Jacques en Ine van Daal naar Vught

En het begon met een zandvlakte waar een kuil in kwam. Jac en Ineke willen namelijk een wijnkelder waar alle drank in kan om die grote familie gastvrij te kunnen ontvangen zoals we van pater Familias and Wife gewend zijn.

Jacques en Ine van Daal naar Vught Jacques en Ine van Daal naar Vught

En dan wordt er van alles en nog wat in dat gat gedaan.
Er worden spullen aangevoerd, hekken geplaatst voor de veiligheid en dan komen de koppen weer boven de grond.

Jacques en Ine van Daal naar Vught Jacques en Ine van Daal naar Vught Jacques en Ine van Daal naar Vught

En dan bereik je het plus peil en er komen stenen boven de grond.

Jacques en Ine van Daal naar Vught

En dan is de beer los. Ze zitten zo in de nok,., De voorpui staat er.
Jacques en Ine van Daal naar Vught Jacques en Ine van Daal naar Vught Jacques en Ine van Daal naar Vught

En wat nog belangrijker is. Die openslaande deuren naar de tuin waar een paar gezellige zitjes in passen staat er ook al.

Jacques en Ine van Daal naar Vught

Jaq en Ineke laat die bouwers zo doorgaan en aan het eind van de zomer kunnen we er met z'n allen al een borrel drinken.
Ja en de foto's stromen binnen. De dakdekkers doen hun best.

Jacques en Ine van Daal naar Vught Jacques en Ine van Daal naar Vught

En vrienden hebben het huis even helemaal afgebouwd. Een kleine impressie van "VANDALENHONK VUGHT".

Jacques en Ine van Daal naar Vught Jacques en Ine van Daal naar Vught Jacques en Ine van Daal naar Vught
Valid XHTML 1.0 Transitional Valide CSS!